Our services
From consulting and strategy development to implementation and support, our comprehensive services can help your business thrive.
3D Modelling
We develop precise, data-rich 3D models for all trades: Architectural, Structural, and MEPF. Using Revit and Navisworks, our models are coordination-ready, LOD-specific, and tailored to meet design intent, field execution, and fabrication needs.
Clash Coordiantion
We identify and resolve spatial, system, and constructability clashes through multi-trade coordination using Navisworks. Our clash reports don’t just flag issues—they come with solutions.






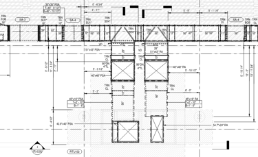
Shop Drawings/As-Builts
We generate trade-specific, code-compliant shop drawings directly from coordinated models. From sleeve layouts to duct and pipe fabrication sheets, we ensure installation accuracy and approval ease.
BIM | VDC SOLUTIONS




Revit Family/Catalog Creation
We build custom, lightweight, and fully parametric Revit families for equipment, fixtures, and BIM objects. All content is compliant with manufacturer specs and project standards.
Prefab/Spooling
Our prefab deliverables are engineered for off-site fabrication and on-site speed. We provide precise spool drawings, BOMs, and installation sequences for ductwork, piping, conduit, and modular assemblies.
Let's make your project BIM to Field ready with our BIM/VDC experts today.